Tiny House on Wheels

For Sale

The Pingora

Starting at:
$88,400
Built in:
Chattanooga, Tennessee
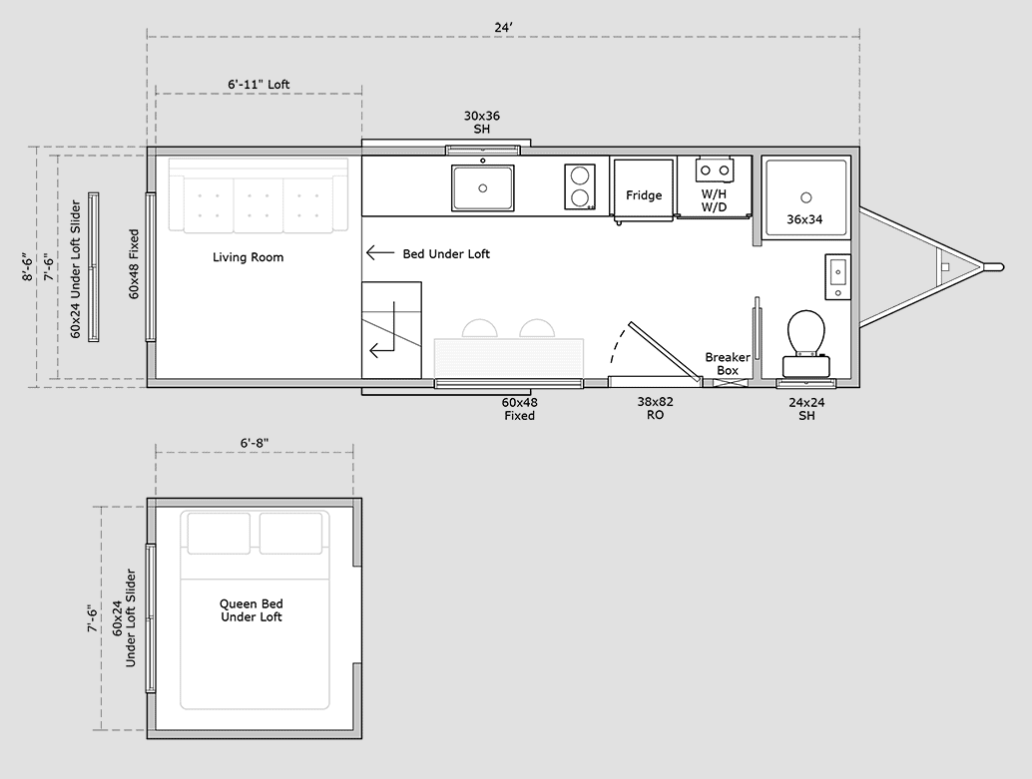
Discover The Pingora, a 24-foot tiny home masterpiece by Wind River Tiny Homes, blending innovation, openness, and light to create a sanctuary for nature lovers and entertainers alike. This Certified Park Model RV features a reverse loft layout, with a cozy main floor sleeping area and lofted living space above, all nestled within a heavy-duty, custom-built tiny home trailer.

Specifications

Base Price(USD)

$88,400

Square Feet(SF)

200
sq.ft.

Sleeps

Up to 4

Layout

1 Bed | 1 Bath

Built by

Wind River Tiny Homes

Ships To

United States

Type

Tiny House on Wheels

Dimensions(in FT)

24' x 8.5'
Radiant, Inviting Modern Haven

The Pingora, a 24-foot tiny home masterpiece by Wind River Tiny Homes, captivates the essence of open-concept living while incorporating clever design elements to maximize space and comfort. As you step inside this Certified Park Model RV, you are immediately greeted with an innovative reverse loft layout, with the main floor dedicated to a cozy sleeping area and the lofted space above reserved for lounging and entertaining.

The heavy-duty, custom-built tiny home trailer rests on a double-axle, bumper-pull chassis, complete with trailer brakes and highway lighting, ensuring that your home is road-ready and DOT-approved. Wrapped in LP SmartSide painted lap siding or board and batten siding, The Pingora offers customization to suit your aesthetic preferences, with an array of color options available for both the siding and trim.

As you enter through the full-light fiberglass door, your eyes are drawn to the bright, airy living area, nestled in the loft above the master sleeping quarters. Accessible via a wooden staircase, the lofted living space offers an inviting atmosphere, surrounded by Marvin brand double-paned fiberglass windows, providing ample natural light and breathtaking views of the outdoors. A sleek, slim-profile LED ceiling light and a standard ceiling fan complete the space, ensuring the perfect ambiance and temperature for relaxation.

The main floor sleeping area measures an impressive 6.7' x 7.5', offering a sense of seclusion without compromising the open design. The wooden railing in the loft adds a touch of elegance, with the option to upgrade to the metal railing for those seeking a more contemporary flair. The Pingora masterfully merges classic and contemporary elements, resulting in a warm and opulent atmosphere accentuated by natural materials and contrasting white walls.

The open living area, perfect for accommodating your choice of furniture or desk, can be further customized with built-ins by Wind River Furniture. The Pingora's propane system, consisting of an exterior console with a propane regulator and braided cord, ensures a seamless connection to ground-mounted propane tanks, while an on-demand propane tankless water heater provides hot water when you need it.

The kitchen is a beautiful blend of form and function, featuring closed lower cabinets with soft-close hardware, finish-grade plywood boxes, and open upper shelving. The butcher block countertop is adorned with a drop-in stainless or composite sink, complemented by a choice of brushed nickel, oil-rubbed bronze, or black faucet and cabinet hardware. The kitchen design harmoniously combines contemporary elements with the warmth of natural materials.

The bathroom boasts a 36" x 34" shower pan and insert, with tile options available for those seeking to customize further. A low-profile vanity, round-bowl gravity flush toilet, and a choice of pocket or swing door complete the space, while connections for alternative toilet options are also available. The bathroom vanity light adds a touch of elegance to the overall design.

The Pingora offers a one-year limited warranty on workmanship and pass-through warranties on appliances and certain materials, ensuring peace of mind as you embark on your tiny home journey. This innovative, nature-inspired tiny home is perfect for those seeking a harmonious balance between the great outdoors and the comforts of contemporary living.

See the full gallery here!

INterested in this tiny home?

Learn More
Love this tiny house? Share it with your friends with the links below!

Our Thoughts

We love the reverse loft layout, which allows for an open, airy living area and cozy sleeping space on the main floor. The Pingora's attention to detail and customization options allows homeowners to personalize their sanctuary according to their tastes and preferences. This tiny home is ideal for those who value the connection with nature and seek a harmonious living experience within a small footprint.

Our Ratings

Layout: 8/10

Design: 9/10

Quality: 8/10

Value: 9/10

Overall Rating

8.5 / 10

More Small Homes

View All Tiny Homes

Get Early Access to New Models

Occasionally: New Models, Special Offers, Small House Guides
Never: Junk or Spam and we don't sell or misuse your email
Welcome to the fam! We're excited to have you join the community.
Oops! Something went wrong while submitting the form. Please try again or use the form below.