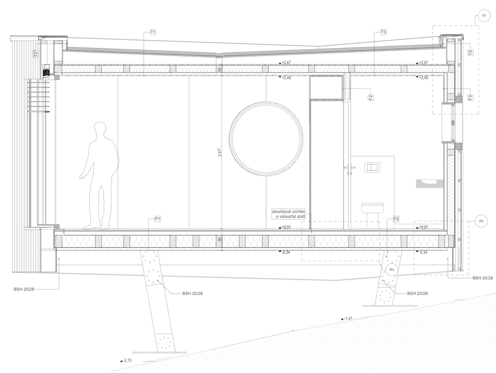
The WauHaus (pronounced Wow-House!) designed and built by Hello Wood is truly one of a kind. It's been designed with minimalism in mind. Not only in regards to the build, but also with encouraging a minimalist life style. The 24 foot long by 8 foot wide tiny home sits on four pillars suspended from the hill slope, giving the tiny house a floating feeling – almost looking weightless.
.jpg)
A deck leads you up to the entrance of the tiny home on the side, with glass windows on all sides of the home. It's non-traditional roof slope give the inside the appearance of grand expansion as you take in the stunning view from the glass doors from wall to wall.
.jpg)
Simple yet elegant, the modern design is softened by the natural tones of the wood. Plenty of large windows to illuminate the entire tiny home with bright natural light. Real wood paneling on the inside brings the cabin to life, without looking extremely rustic or old.
The round window in the side of the home makes you feel like you're in a ship knowing there is an adventure in those unknown woods just ready to be explored.
Perched on the top of the hillside, it makes this Tiny Home and ideal place to escape the noise and enjoy the peace and quiet stillness the countryside has to offer – aided by the simplicity of the modern cabin design, you're sure to get the rest you needed!
Check out more photos of the WauHaus in the Gallery!
Hello Wood Instagram: @hellowood
We love the simple design that has been extremely well done. Hello Wood did a great job of reducing the "noise" of regular homes, and only keep the things that are absolutely essential for necessity but also for a great aesthetic. There is tons of natural light from all of the windows in the Tiny Home, which we are really big on. I love the pillars the home is set on, it's such a unique design that it makes the slope and placement feel very intentional and directly built into the design.
Inside is clean and useful. They didn't overly clutter it, yet it has everything you need. This Tiny Home is truly built to enjoy the view. Simplify and enjoy life!
Our Ratings
Layout: 8/10
Design: 10/10
Quality: 9/10
Value: 9/10