A-Frame

For Sale

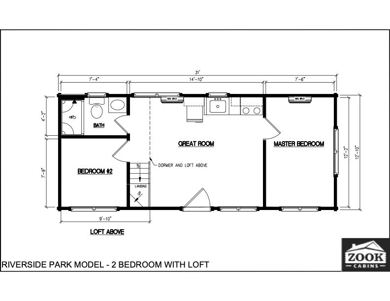
The Riverside Park Model Cabin

Starting at:
$140,000
Built in:
Pennsylvania
Escape to the captivating The Riverside Park Model Cabin, where rustic charm meets modern comfort. With its log stack design, exposed beams, and climate-controlled interior, this cabin offers a timeless retreat. Indulge in the convenience of modern appliances, USB receptacles, and a thoughtfully crafted bathroom. Get ready for a sanctuary like no other.

Specifications

Base Price(USD)

$140,000

Square Feet(SF)

400
sq.ft.

Sleeps

Up to 8

Layout

3 Bedrooms l 1 Bathroom

Built by

Zook Cabins

Ships To

USA

Type

A-Frame

Dimensions(in FT)

Customizable
Classic, Cozy, Cabin

Introducing the exquisite Riverside Park Model Cabin, a captivating blend of rustic allure and modern indulgence. Step into a world where the log stack design on the exterior beckons you with its timeless charm, while the exposed log beams inside whisper tales of cozy evenings and cherished memories. This cabin is a true testament to the seamless fusion of natural beauty and contemporary convenience.

Prepare to be enchanted as you explore the wonders of the Riverside Park Model Cabin. Immerse yourself in the comfort of a climate-controlled interior that transcends the boundaries of seasons. No matter the weather outside, you can revel in a space designed to cocoon you in tranquility and luxury, ensuring a harmonious living environment year-round.

Unleash your culinary creativity in a kitchen adorned with modern appliances that are as practical as they are stylish. The 9.8 Cu. Ft. fridge, 30" electric range/oven, and 30" over-the-range microwave are ready to elevate your culinary prowess to new heights. With seamless integration into the cabin's layout, these appliances epitomize culinary sophistication.

In a world brimming with gadgets and devices, we understand the need to stay connected effortlessly. That's why the Riverside Park Model Cabin boasts strategically placed USB receptacles, a delightful oasis where charging your electronic companions becomes a breeze. Bid adieu to the never-ending hunt for power outlets and embrace a world where your devices are always fueled and ready for action.

Rest assured that The Riverside Park Model Cabin is not just a vision of beauty but a sanctuary built to exceed the highest standards. Crafted in adherence to ANSI 119.5 regulations and with the prestigious RVIA seal, this cabin exemplifies quality, safety, and excellence. Bask in the peace of mind that comes with knowing your abode is crafted with an unwavering dedication to craftsmanship and precision.

Step into a world of thermal enchantment with the Riverside Park Model Cabin's insulated roof and floor. The spray foam insulation creates a haven where temperature fluctuations are tamed, energy efficiency reigns supreme, and the tranquility serenade is uninterrupted. It's not just about comfort; it's about creating an environment that reflects your desires and values.

Indulge your senses in the rustic hickory cabinets, countertops, and backsplashes that adorn the kitchen. With their captivating grain patterns and enduring strength, these elements exude an air of natural splendor that effortlessly weaves together form and function. Experience an aesthetically pleasing and purposeful space, a true testament to the art of harmonious design.

The Riverside Park Model Cabin bathroom is a haven of luxury and convenience. From the oil-rubbed bronze shower head that cascades warmth upon your skin to the elegant 24" vanity with its enchanting faucet, every element has been thoughtfully curated to transform your self-care rituals into moments of bliss. It's time to indulge in the luxury you deserve.

Every detail has been considered in the Riverside Park Model Cabin. This cabin anticipates your needs, including electrical fixtures, ceiling fans, and outlets. It switches to the meticulously designed plumbing system with water lines built to withstand even the harshest climates. All you have to do is step into this world of curated elegance and let your worries disappear.

The Riverside Park Model Cabin is an unparalleled masterpiece in a tapestry woven with rustic allure, modern elegance, and boundless comfort. Embrace the invitation to create memories, embark on adventures, and surrender to the embrace of a sanctuary that is more than just a dwelling—it's a testament to your dreams.

INterested in this tiny home?

Learn More
Love this tiny house? Share it with your friends with the links below!

Our Thoughts

The Riverside Park Model Cabin is nothing short of awe and admiration. The seamless integration of rustic aesthetics with modern comforts creates a harmonious living space that transcends expectations. From the log stack design to the climate-controlled interior, every detail has been carefully considered. The inclusion of modern appliances, USB receptacles, and a well-appointed bathroom further elevates the experience. It is a true testament to craftsmanship and design, offering a sanctuary where one can escape the ordinary and immerse themselves in a world of tranquility and luxury. The Riverside Park Model Cabin is a haven worth cherishing.

Our Ratings

Layout: 8/10

Design: 8/10

Quality: 8/10

Value: 8.5/10

Overall Rating

8.5

More Small Homes

View All Tiny Homes

Get Early Access to New Models

Occasionally: New Models, Special Offers, Small House Guides
Never: Junk or Spam and we don't sell or misuse your email
Welcome to the fam! We're excited to have you join the community.
Oops! Something went wrong while submitting the form. Please try again or use the form below.