Tiny House on Wheels

For Sale

The Arion

Starting at:
$69,650
Built in:
Idaho
The Arion, a tiny house built by Tiny Idahomes, is a testament to how elegance, functionality, and comfort can be skillfully woven into a compact living space. With an abundance of windows to maximize natural light and views, The Arion is more than a tiny home; it's a unique, inviting retreat that effortlessly accommodates and charms its inhabitants.

Specifications

Base Price(USD)

$69,650

Square Feet(SF)

260
sq.ft.

Sleeps

Up to 6

Layout

2 Lofts | 1 Bath

Built by

Tiny Idahomes

Ships To

United States

Type

Tiny House on Wheels

Dimensions(in FT)

26' x 10'
The Entertainer's Paradise

Immerse yourself in the splendid world of compact living, as you step inside The Arion, a stunning tiny home meticulously designed and built by Tiny Idahomes. This is a house where functionality meets style, turning every corner into a charming and well-utilized space. Perfect for social butterflies, The Arion offers plenty of space for entertaining, creating an atmosphere where hospitality and coziness go hand in hand.

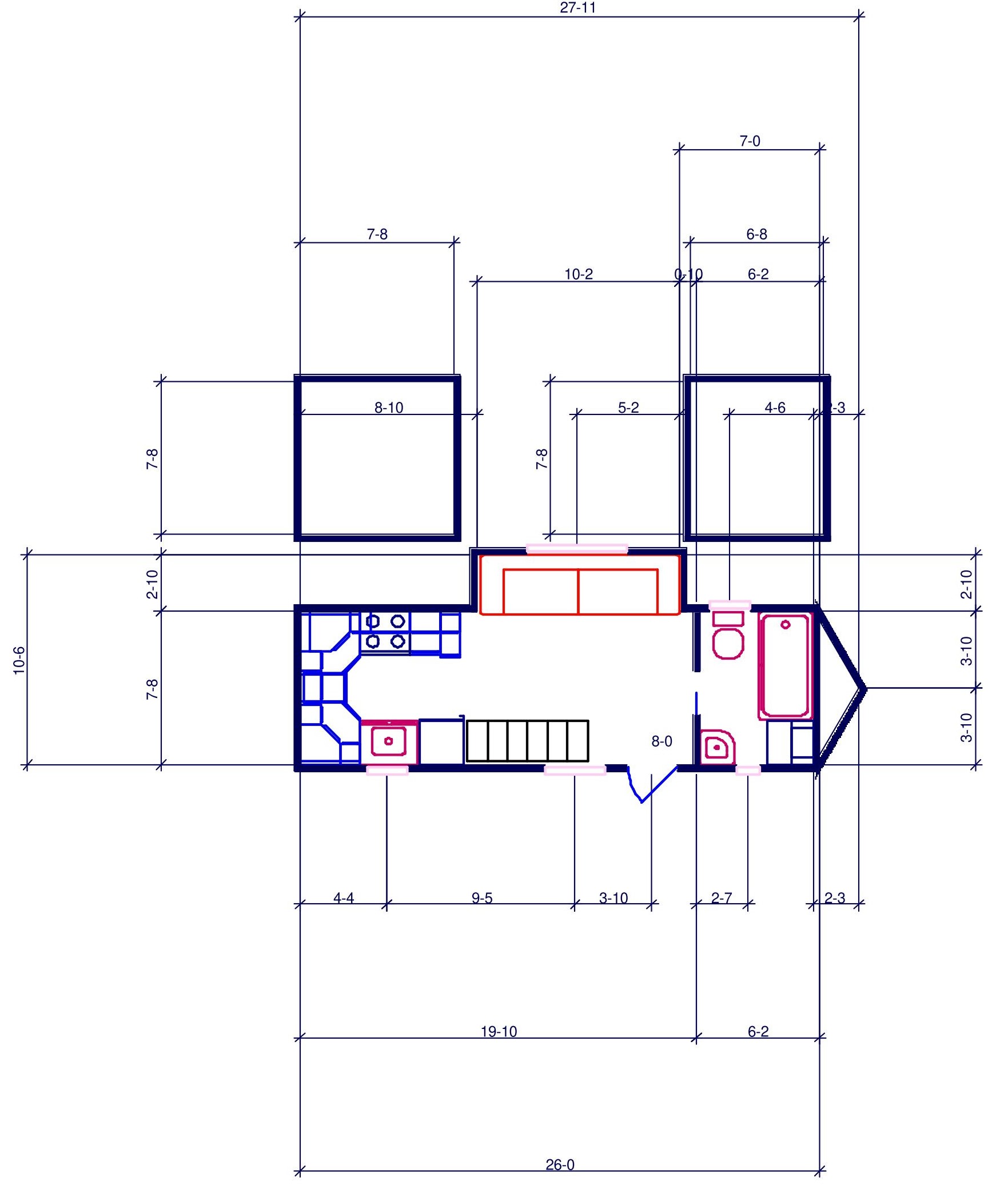
Enter and you'll immediately notice its massive, well-appointed U-shaped kitchen. With a mix of modern design elements and a warm, welcoming atmosphere, this kitchen is nothing short of a culinary enthusiast's dream. The area features custom cabinets, providing plenty of storage, while the layout ensures optimal space usage. It's the perfect spot to prepare an intimate dinner or cook a festive meal for your family and friends.

Adjacent to the kitchen, you'll find the living and dining area, a space that will undoubtedly impress with its 10-foot slide-out feature. This area allows for a custom U-shaped couch, perfect for cozy movie nights or lively game evenings. The open floor plan ensures the room feels spacious and inviting, encouraging lively conversations and memorable gatherings.

A hallmark of The Arion is its ability to comfortably sleep six, transforming it into a home away from home. Two private sleeping lofts, one nestled above the kitchen and another perched over the bathroom, provide peaceful retreats for rest and relaxation. Each loft can be accessed differently; the rear loft is equipped with wide, easy-to-climb stairs, while the front loft offers an adventurous climb up a hanging pine ladder, adding an element of fun and whimsy to the overall design.

A well-thought-out and spacious bathroom complements the rest of the home's features. It boasts a shower-tub combination that provides an excellent way to unwind after a long day. To add an elegant touch, a crystal vessel sink sits atop a large closet with a waterfall faucet, ensuring the bathroom is as stylish as it is functional. With ample storage space, it becomes easy to keep all your personal items organized.

Another cool feature of The Arion is its abundant use of windows. The home is filled with natural light, making every corner feel airy and bright, creating a calming ambiance. Moreover, these windows are not merely practical but also offer the opportunity to relish stunning outside views from every angle of the house.

This tiny home on wheels encapsulates the ethos of compact living without compromising on comfort, luxury, or style. It's an entertainment hub, a tranquil sanctuary, and an efficient home rolled into one, making it the perfect choice for those seeking a unique and charming dwelling. The Arion isn't merely a tiny house; it's a grand invitation to embrace a lifestyle brimming with creativity, flexibility, and warmth.

INterested in this tiny home?

Learn More
Love this tiny house? Share it with your friends with the links below!

Our Thoughts

The Arion's U-shaped kitchen and expansive living/dining room are excellent examples of its thoughtful design, making it an ideal space for both socializing and relaxing. Given the ample natural light and picturesque views from every corner, living in The Arion feels akin to dwelling in a luminous, snug cocoon. 

Our Ratings

Layout: 8/10

Design: 7/10

Quality: 8/10

Value: 8/10

Overall Rating

7.75 / 10

More Small Homes

View All Tiny Homes

Get Early Access to New Models

Occasionally: New Models, Special Offers, Small House Guides
Never: Junk or Spam and we don't sell or misuse your email
Welcome to the fam! We're excited to have you join the community.
Oops! Something went wrong while submitting the form. Please try again or use the form below.