Small Home

For Sale

Seaborne Cottage

Starting at:
$79,000
Built in:
Florida
The seaborne cottage is a small house that not only looks chic but also comes bearing multiple amazing features that make living easy-breezy.

Specifications

Base Price(USD)

$79,000

Square Feet(SF)

352
sq.ft.

Sleeps

Up to 4

Layout

1 Bed | 1 Bath

Built by

Historic Shed

Ships To

United States & Canada

Type

Small Home

Dimensions(in FT)

22' x 16'
Subtle yet Stunning

The Seaborne Cottage is a lovely little house that can effortlessly accommodate up to four people while still sparing enough elbow room for easy mobility. Built in Florida by the eminent Historic Shed, the Seaborne Cottage can be shipped to the United States and Canada. The charming exterior and the roomy interior together accentuate the elegance possessed by this house making it appear just as good as it is for residing. The conventional use of external lap siding as well as impact resistant windows stands as an example of the application of durable and sustainable materials that constitute the house.

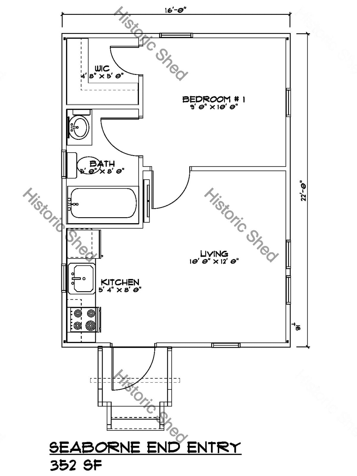
The Seaborne spreads across 353 square feet and provides ample space to the residents for conducting daily chores and everyday activities hassle free. A small covered portico that can be alternatively customised into a full front porch is an excellent feature that offers additional space for relaxing in the open air. The layout of the house is basic yet practical and is broadly divided into two sections- the living room and the bedroom with smaller areas covered by the kitchen and the bathroom.

The main front door opens in the living room which is decently sized at 10’ 1” x 12’ 0” dimensions. This room also holds the open kitchen and dining area. The living room can be used to place a loveseat and an L-shaped sofa set along with a small centre table or a floor to ceiling cabinet. You can even mount an air conditioner or a television set on the common wall. The kitchen comprises of all the necessities such as a standard countertop with a 4 burner gas oven, a rectangular sink and a double door fridge.

The adjacent bedroom is commodious and can conveniently room a king sized bed. You can enhance the beauty of your personal space by adding corresponding elements such as a drawer dresser with an attached mirror or even a study table placed near the wall. An in-built closet for stacking clothes and other items comes in handy and is a great added benefit. The bathroom is accessible through the bedroom and is pleasantly substantial and wide. A modern washroom basin with a decently sized vanity and wall mounted open shelves can increase storage facility and general utility. The house can adapt a larger footprint to create room for a stackable washer and dryer. A residential toilet and a free standing bathtub can also easily fit in this structure.

INterested in this tiny home?

Learn More
Love this tiny house? Share it with your friends with the links below!

Our Thoughts

The Seaborne Cottage is a wonderful small house with multiple customisable features that allow you to tailor make your house according to your own taste and preferences. The use of long lasting materials teamed with a stylish design makes this small house a value for money bargain.

Our Ratings

Layout: 7/10

Design: 7/10

Quality: 7/10

Value: 7/10

Overall Rating

7 / 10

More Small Homes

View All Tiny Homes

Get Early Access to New Models

Occasionally: New Models, Special Offers, Small House Guides
Never: Junk or Spam and we don't sell or misuse your email
Welcome to the fam! We're excited to have you join the community.
Oops! Something went wrong while submitting the form. Please try again or use the form below.