Tiny House on Wheels

For Sale

Hilltop Tiny House

Starting at:
$150,000
Built in:
KatiKati, New Zealand
Designed for a young couple with a penchant for compact living, this 8-meter dwelling offers a spacious upgrade from their previous boat quarters. With impeccable interior design choices, such as warm varnished poplar plywood walls and brushed brass fittings, Hilltop exudes a modern and open ambiance. This tiny home encapsulates the essence of efficient living without compromising on style or functionality, providing a tranquil retreat in the heart of nature.

Specifications

Base Price(USD)

$150,000

Square Feet(SF)

221
sq.ft.

Sleeps

Up to 4

Layout

1 Bed | 1 Bath

Built by

Build Tiny Limited

Ships To

New Zealand

Type

Tiny House on Wheels

Dimensions(in FT)

26' x 8.5'
Compact Luxury, Boundless Horizons

Step into the world of Hilltop, a remarkable tiny home crafted by Build Tiny in New Zealand. This cozy abode was tailor-made for a young couple who are no strangers to living in compact spaces, having spent ample time navigating the tight quarters of boats. With their love for efficient living and a desire for a more spacious haven, they embarked on a journey to create their dream dwelling - an 8-meter tiny house that offers them a newfound sense of freedom and tranquility. Nestled atop a hill, this architectural gem earns its name from the breathtaking panoramic views that surround it.

As you step through the door, you're greeted by an interior that reflects the couple's impeccable taste in interior design. The warm varnished poplar plywood walls create an inviting ambiance, while brushed brass tapware and fittings add a touch of elegance. Every aspect of the cabinetry has been meticulously designed and custom-made, ensuring that no corner of the house is wasted. The result is a space that feels both modern and open, far beyond what one might expect from a tiny home.

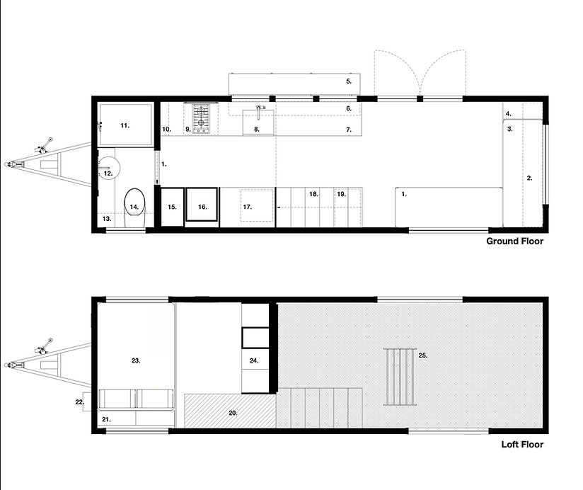
Hilltop boasts an array of features that further elevate its allure. The on-grid 16-amp caravan connection, prewired for solar power, ensures a seamless transition to sustainable energy sources. The single loft, accessed by a sturdy ladder, provides a private sanctuary for rest and relaxation. Measuring 8 meters long and 2.4 meters wide, this tiny home maximizes every inch of its compact footprint.

The living area in Hilltop has been thoughtfully designed to offer flexibility and comfort. A storage couch effortlessly converts into a cozy sofa bed, ideal for hosting guests or enjoying a quiet evening curled up with a book. Overhead cupboards line the walls, providing ample storage space for personal belongings. A side table with built-in storage offers a convenient spot for books, trinkets, or a cup of tea.

The kitchen area is a true delight for culinary enthusiasts. A breakfast bar area invites you to savor your morning coffee while enjoying the picturesque views outside. A butler's sink adds a touch of charm, complementing the gas oven where delectable meals can be prepared with ease. The thoughtful inclusion of a pull-out pantry and a fridge ensures that storage is both practical and efficient, while a washer/dryer combination unit caters to the couple's laundry needs.

The bathroom in Hilltop is a sanctuary of its own. A cleverly designed composting toilet, a spacious shower, and a stylish basin/vanity combination provide all the amenities one could desire. The use of premium materials and fixtures ensures that every moment spent in this space is a retreat from the world.

Outside, Hilltop reveals yet another impressive feature—an exterior detachable server. This thoughtful addition allows for seamless outdoor dining experiences, soaking up the beauty of nature while relishing a meal with loved ones. Walking platforms surrounding the home provide a sense of connection to the outdoors, encouraging exploration and appreciation of the stunning surroundings.

As you explore the tiny home, you'll come across a unique touch—a pulley laundry rack. This ingenious solution allows for drying clothes with ease, maximizing the functionality of the space without compromising on style or convenience.

Hilltop is a testament to the extraordinary possibilities that lie within the realm of tiny homes. With its clever design, impeccable craftsmanship, and attention to detail, this dwelling offers a spacious and modern living experience that transcends its compact dimensions. The young couple behind its creation has successfully transformed their vision into a reality, delivering a home that embraces both functionality and aesthetics. Hilltop is a true oasis, where panoramic views, intelligent design, and luxurious comforts intertwine to create a haven like no other.

See the full gallery here!

INterested in this tiny home?

Learn More
Love this tiny house? Share it with your friends with the links below!

Our Thoughts

Upon exploring Hilltop, it becomes evident that this tiny home is a masterpiece of design and functionality. The attention to detail, from the warm and inviting interior to the cleverly optimized storage solutions, showcases the craftsmanship and thoughtfulness that went into its creation. The combination of panoramic views, modern amenities, and sustainable features makes Hilltop an ideal sanctuary for those seeking a minimalist and eco-conscious lifestyle.

Our Ratings

Layout: 8/10

Design: 8/10

Quality: 8/10

Value: 8 /10

Overall Rating

8 / 10

More Small Homes

View All Tiny Homes

Get Early Access to New Models

Occasionally: New Models, Special Offers, Small House Guides
Never: Junk or Spam and we don't sell or misuse your email
Welcome to the fam! We're excited to have you join the community.
Oops! Something went wrong while submitting the form. Please try again or use the form below.